Description
                TOUET DE L'ESCARENE
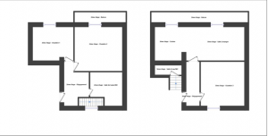
Maison de village composée de 2 appartements soit :
- un appartement de 3 pièces d'une superficie d'environ  58 m2 en duplex  avec balcon dans chambre et salon.
- un appartement 2 pièces d'une superficie d'environ 35 m2 en dernier étage avec balcon filant donnant belle pièce de vie.
Un terrain non attenant d'une superficie de 150 m2 pourra vous servir de potager ou de coin détente , situé à 2 pas de la maison.
Le bien bénéficie également d'un garage d'une superficie supplémentaire de 26 m2.
Diagnostics de vente : 24/03/25
Efficacité énergetique :454  kWh EP / m2, an classe G
Emissions de GES : 20  kg CO2 / m², an Classe  C
Estimation des couts annuels : entre  3270  € et  4460  € 
Pas de charges de copropriété
Honoraires à la charge du vendeur.
Les informations sur les risques auxquels ce bien est exposé sont disponibles sur le site Géorisques :http://www.georisques.gouv.fr
 
                
                
                    Résumé
  Prix:    205 000 €  
    
  Adresse
     TOUET DE L ESCARENE  
  
  
    
  
Catégorie:   Ventes  
Type de Bien:   Maison de Village  
  Ville:    TOUET DE L'ESCARENE   
  Code Postal:    06440   
  Département:    06   
  
Nombre de Pièces:   5  
  Chambres:    3   
  Etages:    3   
					
Ref:   2017153  
  
    
  
  
       Version imprimable
  
                  
				
                                                
				                Surfaces
                
                
                
                
                
                
                
                
                
                
                
                
                
                
                
                
                
                
                
                
                
                
                
                
                
                
                
                - 
                
  Terrain: 153 m2  
                 
                
                
                
                
                				
                                Extérieur
                
                
                                
                                
                                
                                                  
                  Efficacité Energétique
                  
                  
                  
                  
                   
                                  
                  
                
                                
                                
                                
                                Localisation du bien
                
                
                
                				
                                
                Galerie d’image